Minyak Rem

PERINGATAN
Kontak dengan minyak rem DOT 4 dapat memberikan dampak buruk yang serius pada kesehatan. Kelalaian untuk mengenakan pelindung mata dan kulit yang tepat dapat menyebabkan kematian atau cedera parah.
Jika terhirup: Tetaplah tenang, hirup udara segar, cari bantuan medis.
Jika mengenai kulit: Lepas pakaian yang terkena minyak. Basuh kulit dengan air selama 15-20 menit. Jika iritasi semakin parah, cari bantuan medis.
Jika mengenai mata: Biarkan kelopak mata terbuka dan cuci mata yang terkena minyak dengan air mengalir selama setidaknya 15 menit. Jika iritasi semakin parah, cari bantuan medis.
Jika tertelan: Bersihkan mulut dan minum banyak air. Jangan paksa untuk muntah. Hubungi Layanan Penanggulangan Keracunan. Segera cari bantuan medis.
Lihat Lembar Data Keselamatan (SDS) untuk perinciannya di sds.harley-davidson.com
(00240e)

PERINGATAN
Setelah penggunaan dalam waktu yang lama, minyak rem DOT 4 akan menyerap kelembapan dari udara dan mengubah sifat minyak. Periksa kadar kelembapan minyak rem di setiap interval servis atau setiap tahun (mana pun yang tercapai lebih dulu). Kuras dan ganti minyak rem setiap dua tahun sekali atau lebih cepat jika kadar kelembapannya sebesar 3% atau lebih tinggi. Kelalaian menguras dan mengganti minyak rem dapat memengaruhi pengereman yang dapat mengakibatkan kematian atau cedera parah. (06304b)
Untuk memastikan sistem rem berfungsi dengan baik, periksa kadar kelembapan minyak rem pada setiap interval servis atau setidaknya setahun sekali menggunakan alat uji kelembapan minyak rem DOT 4 (nomor komponen HD-48497-A atau yang setara) sesuai instruksi yang disertakan dengan alat. Kuras minyak DOT 4 setiap 2 tahun atau lebih dini jika uji minyak sistem rem menunjukkan kadar kelembapan sebesar 3% atau lebih.
Harley-Davidson menyarankan penggunaan Minyak Rem Label Platinum DOT 4 Harley-Davidson karena memiliki kelembapan yang baik dan mengandung bahan pencegah korosi.

PERINGATAN
Bersihkan tutup tangki bahan bakar sebelum dilepaskan. Hanya gunakan minyak rem DOT 4 dari wadah yang tertutup. Minyak rem yang terkontaminasi dapat memengaruhi pelepasan rem atau kopling yang dapat menyebabkan kematian atau cedera parah. (00504d)
PEMBERITAHUAN
Permukaan yang dicat dan panel bodi dapat rusak jika terkena minyak rem DOT 4. Selalu berhati-hati dan lindungi permukaan dari tumpahan ketika melakukan servis pada rem. Kelalaian dalam mematuhi petunjuk ini dapat menyebabkan kerusakan penampilan kendaraan. (00239c)
PEMBERITAHUAN
Jangan sampai kotoran atau serpihan masuk ke tabung silinder master. Kotoran atau serpihan dalam tabung dapat menyebabkan operasi yang tidak sesuai dan perlengkapan rusak. (00205c)
CATATAN
Setiap kali sepeda motor diservis, periksa kadar kelembapan minyak rem menggunakan
DOT 4 BRAKE FLUID MOISTURE TESTER (ALAT UJI KELEMBAPAN MINYAK REM DOT 4) (Nomor Komponen:HD-48497-A). Ikuti instruksi yang disertakan di alatnya.
Kuras sistem rem dan ganti minyak DOT 4 setiap dua tahun sekali atau lebih cepat jika uji minyak rem menunjukkan kadar kelembapannya 3% atau lebih tinggi.
Minyak rem tidak perlu ditambah atau dikeluarkan dari sistem saat terjadi keausan normal, kecuali saat penggantian minyak rem sebagaimana ditentukan dalam jadwal pemeliharaan.
Ketinggian minyak rem di dalam tabung akan berkurang seiring keausan rem. Volume tabung cukup untuk memberi minyak rem hingga batas aus kampas rem dan rotor.
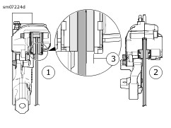
Rem depan: Posisikan sepeda motor dan setang sedemikian rupa agar tabung silinder master seimbang.
Lihat
Gambar 1. Lihat kaca transparan (1) untuk memastikan bahwa tinggi permukaan minyak rem berada tepat atau di atas bagian tengah kaca transparan.
Rem belakang: Posisikan sepeda motor sedemikian rupa agar tabung silinder master seimbang. Pastikan tinggi permukaan minyak rem terlihat pada jendela (2).
Jika tinggi permukaan minyak rem berada di bawah tanda minimum atau tidak ada di tabung minyak rem depan atau belakang, bawa sepeda motor ke dealer Harley-Davidson.
Pastikan tuas tangan rem depan dan pedal rem kaki terasa kencang saat digunakan. Jika rem tidak terasa kencang, buang minyak rem dari sistem rem. Kunjungi dealer Harley-Davidson.
Gambar 1. Tanda Minyak Rem Minimum
Kampas Rem

PERINGATAN
Periksa kampas rem apakah ada keausan pada interval servis pemeliharaan. Sering-seringlah melakukan pemeriksaan jika berkendara di kondisi lingkungan parah (tanjakan curam, lalu lintas macet, dll). Kampas rem yang aus secara berlebihan dapat menimbulkan rem blong yang dapat menyebabkan kematian atau cedera parah. (00052a)

PERINGATAN
Selalu ganti kampas rem dalam satu rangkaian guna menjamin pengoperasian rem yang benar dan aman. Pengoperasian rem yang keliru dapat menyebabkan kematian atau cedera parah. (00111a)

PERINGATAN
Rem merupakan komponen keselamatan penting. Hubungi dealer Harley-Davidson untuk perbaikan atau penggantian rem. Rem yang tidak diservis dengan benar dapat memengaruhi performa rem dan menyebabkan kematian atau cedera parah. (00054a)

PERINGATAN
Lakukan pemeliharaan rem rutin sesuai jadwal. Pemeliharaan yang tidak dilakukan pada interval yang direkomendasikan dapat memengaruhi performa rem yang dapat menyebabkan kematian atau cedera parah. (00055a)
Harley-Davidson telah melengkapi sepeda motor Anda dengan bahan gesek kampas rem nomor satu. Bahan tersebut memberikan performa terbaik dalam kondisi basah, kering maupun suhu pengoperasian tinggi. Kami memilih bahan yang melampaui semua persyaratan wajib yang berlaku. Namun, saat melakukan pengereman, Anda mungkin mendengar noise. Noise tersebut normal untuk bahan gesek.

PERINGATAN
Pastikan roda dan kaliper rem disetel dengan benar. Berkendara dengan roda atau kaliper rem yang tidak disetel dengan benar dapat membuat cakram macet dan hilang kendali yang dapat menyebabkan kematian atau cedera parah. (00050a)
Periksa apakah cakram rem belakang berputar. Cakram semestinya berputar dengan benar di kaliper rem.
Lihat
Gambar 2. Ukur ketebalan bahan gesek kampas rem. Untuk rem belakang, letakkan penggaris pada cakram rem melalui ruang di sepanjang kaliper.
Gambar 2. Ketebalan Kampas Rem
CATATAN
Kampas rem harus selalu diganti sepasang sekaligus.
Ganti kampas rem sebelum bahan gesek mencapai ketebalan minimum. Kunjungi dealer Harley-Davidson. Lihat
Tabel 1.
Tabel 1. Ketebalan Minimum Bahan Gesek Kampas Rem